
Tlayacapan, Morelos, México
2021
Proyecto Residencial
1,500 m²
Finalizado
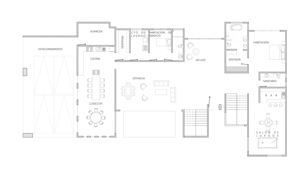
Proyecto de casa en Morelos. Ubicado en Tlayacapan, Casa TL es un proyecto de 1,500m² que parte de un proyecto arquitectónico inconcluso, el cual no tenía aun definidas las areas y su función en interiores. A+E Studio desarrollando un proyecto de interiores y acabados diseñándolos como un santuario de relajación y desconexión, donde el diseño biofílico y la arquitectura contemporánea se unen para potenciar la conexión con la naturaleza. Con un clima privilegiado y entornos naturales exuberantes, esta residencia vacacional integra amenidades de lujo como terrazas panorámicas, jacuzzis al aire libre, sala de cine y sala de juegos, creando experiencias que equilibran el entretenimiento y la serenidad.
A+E Studio prioriza en el diseño la integración con el paisaje: grandes ventanales, materiales orgánicos como madera y piedra local, y espacios fluidos que difuminan los límites entre interior y exterior. La paleta neutral (con bases en blanco y tonos tierra) resalta la vegetación circundante, mientras techos altos y patios interiores favorecen la ventilación natural y la entrada de luz, reforzando el bienestar físico y emocional.
Casa TL es un ejemplo de cómo la arquitectura puede transformar un proyecto inconcluso en una residencia vacacional de alto impacto.












